導軌滑塊配件
R161934011 力士樂氣動夾持和制動元件TKPS
品牌:博世力士樂
名稱:氣動夾持和制動元件TKPS
部件號:R161934011
規格:35
021-57893800工作時間:周一至周五 9:00-18:00
- 產品介紹
- 技術參數
- 產品圖片
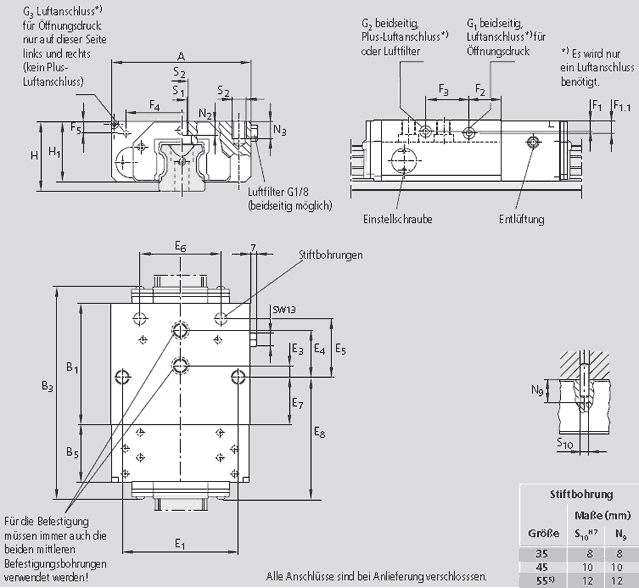
力士樂氣動夾持和制動元件r161934011配有附加模塊,無轉接板,從上面進行安裝固定。附加模塊和強大的彈簧儲能器,實現*高的軸向夾持力;在補充氣口上施加額外氣壓,可以進一步增大夾持力。

| A | 100 | |
| B1 | 136 | |
| B3 max | 156.4 | |
| B5 | 46 | |
| E1 | 82 | |
| E3 |
5.0 |
|
| E4 | 31.0 | |
| E7 | 88.0 | |
| F1 | 10.0 | |
| F2 | 77 | |
| F3 | 28 | |
| F4 | 82 | |
| F5 | 8.0 | |
| G1 | G1/8" | |
| G2 | G1/8" | |
| G3 | M5 | |
| H | 48 | |
| H11) | 42 | |
| N22) | 9.5 | |
| N3 | 10.0 | |
| S1 | 8.6 | |
| S2 | M10 | |
| 夾持力彈簧儲能3) N | 2 200 | |
| 夾持力用補充進氣口4) N | 3 200 | |
| 耗氣量標準進氣口(dm3/行程) | 0.150 | |
| 耗氣量補充進氣口(dm3/行程) | 0.335 | |
| 重量 kg | 2.60 |
1)請留意高度
2)從下面用螺栓安裝,符合DIN 7984的要求
3)通過彈簧儲能獲得的夾持力。試驗是在安裝完畢條件下進行的,具有一層潤滑油膜(ISO-VG68)。
4)在補充進氣口通5.5 bar的壓縮空氣額外加壓獲得的夾持力。通過2位通或5通或3位通5換向閥來切換。








